Blokhut Tuinhuis Pamplona

 2.039,00

Exclusief verzendkosten

- +

De voordelen van Blokhut.nl

SKU: P014365 Categorieën: , Merk:

Beschrijving

Deze charmante blokhut met zadeldak combineert een praktische binnenruimte met een stijlvolle overkapping aan de voorzijde, ideaal voor extra opslag of als knusse buitenplek. Met een vloeroppervlakte van 10,7 m², biedt dit model voldoende ruimte voor gebruik als tuinhuis, hobbyruimte of compacte werkplaats.

De blokhut is vervaardigd uit gedroogd en geschaafd vurenhout met een wanddikte van 34 mm, wat zorgt voor een stevige en duurzame constructie. De dubbele deur (rechts scharnierend) en het te openen raam zijn voorzien van enkel glas (4 mm) en losse roedes, wat zorgt voor veel natuurlijk licht. Dankzij de flexibele opbouw kunnen ramen en deuren zowel links als rechts geplaatst worden, zodat het model goed aan te passen is aan jouw tuinindeling.

Let op: dakbedekking is verplicht, maar wordt apart aangeboden. Keuze uit diverse materialen mogelijk.


Belangrijkste kenmerken

  • Afwerking: Geschaafd

  • Behandeling: Onbehandeld

  • Materiaal: Gedroogd vurenhout

  • Wanddikte: 34 mm

  • Daktype: Zadeldak

  • Deurtype: Dubbele deur (rechts scharnierend)

  • Aantal deuren: 1

  • Glas: Enkel glas (4 mm)

  • Aantal ramen (te openen): 1

  • Roedes: Losse roedes

  • Slot: Cilinderslot inbegrepen

  • Overkapping aan voorzijde

  • Opbouwvariant: Deuren en ramen zijn zowel links als rechts te plaatsen

  • Dakbedekking inbegrepen: Nee (wel verplicht)

  • Geschikt voor dakpannen: Nee

  • Aantal ruimtes: 1


Afmetingen

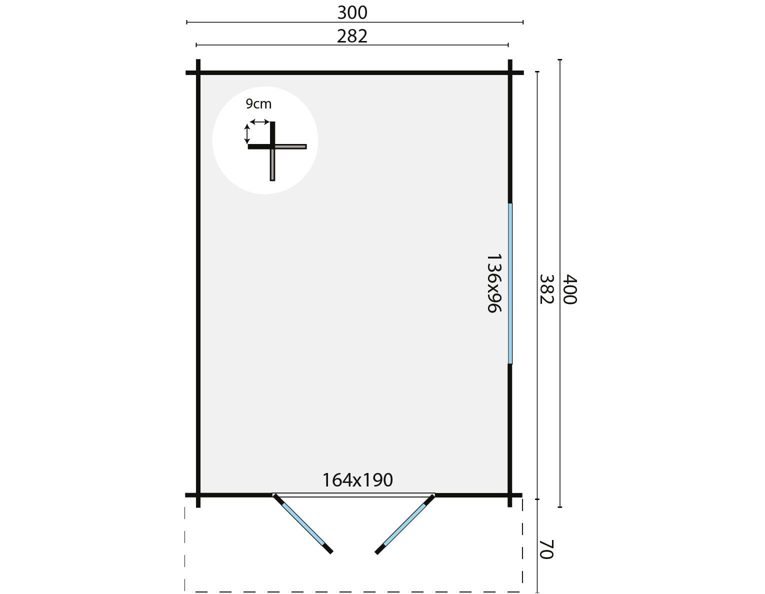
  • Totale afmetingen (L x B): 300 x 400 cm

  • Fundering: 282 x 382 cm

  • Vloeroppervlakte binnen: 10,7 m²

  • Totale oppervlakte: 10,7 m²

  • Inhoud: 22,4 m³

  • Dakoppervlakte: 16,3 m²

  • Nokhoogte: 236 cm

  • Afmeting hoekverbinding: 9 cm


Voordelen

  • Compact en functioneel ontwerp met overdekt terrasgedeelte

  • Veel daglicht dankzij grote dubbele deuren en te openen raam

  • Eenvoudig aan te passen aan de indeling van je tuin

  • Hoogwaardige uitstraling door geschaafd vurenhout


Offerte & montage

Heb je specifieke wensen of wil je hulp bij de montage?
Kom langs in onze showroom voor advies op maat of vraag eenvoudig een vrijblijvende offerte aan. Professionele montage is mogelijk – wij denken graag met je mee!

Specificaties

Productspecificaties
Voor- en achterzijde (cm) 300
Zijkanten (cm)
Nokhoogte 236
Breedtemaat luifel 300
Wanddikte 34mm
Daktype Zadeldak
Houtsoort
Houtkleur Onbehandeld
Houtbehandeling Onbehandeld

Gerelateerde producten

Meest gestelde vragen

Ja, tenzij het hout onder druk geïmpregneerd is, dient u het hout binnen 4 weken na montage te behandelen tegen weersinvloeden.

Dit is een voorbehandeling die het hout beschermt tegen schimmels en insecten, maar nog niet tegen UV-straling en vocht.

De blokhut wordt als bouwpakket geleverd op een grote pallet, meestal met een vrachtwagen voorzien van een kooiaap (meeneemheftruck).

In veel gevallen mag u vergunningsvrij bouwen tot een bepaalde hoogte en oppervlakte. Check altijd Omgevingsloket.nl voor de lokale regels.

Ja, wij werken samen met professionele montageploegen en eigen monteurs die de opbouw volledig uit handen kunnen nemen.

Dit verschilt per model. Voor meer informatie kunt u contact met ons opnemen.

Social Media Posts

Winkelwagen
Blokhut - Tuinhuis Pamplona | 34 mm | vuren onbehandeldBlokhut Tuinhuis Pamplona
 2.039,00
- +

Neem contact op

Neem gerust contact met ons op. Wij helpen u graag verder.