Deze stijlvolle en praktische houten kapschuur met royale zij-overkapping is de ideale keuze voor wie op zoek is naar een open buitenstructuur met karakter. Perfect als overdekte loungehoek, buitenkeuken, houtopslag of fietsenstalling. Dankzij het authentieke kapschuurdak en de natuurlijke uitstraling van geschaafd vurenhout past dit model naadloos in elke tuin.
Kenmerken:
Afwerking: Geschaafd vurenhout – strak en verzorgd uiterlijk
Behandeling: Onbehandeld – naar wens te behandelen voor extra bescherming
Daktype: Traditioneel kapschuurdak – dakbedekking optioneel beschikbaar
Overkapping: Ruime zijkant overkapping van 15,8 m²
Droging: Gedroogd hout – minder krimp of werking na plaatsing
Opbouwvariant:
Kan gespiegeld worden opgebouwd – voor flexibele plaatsing in uw tuin
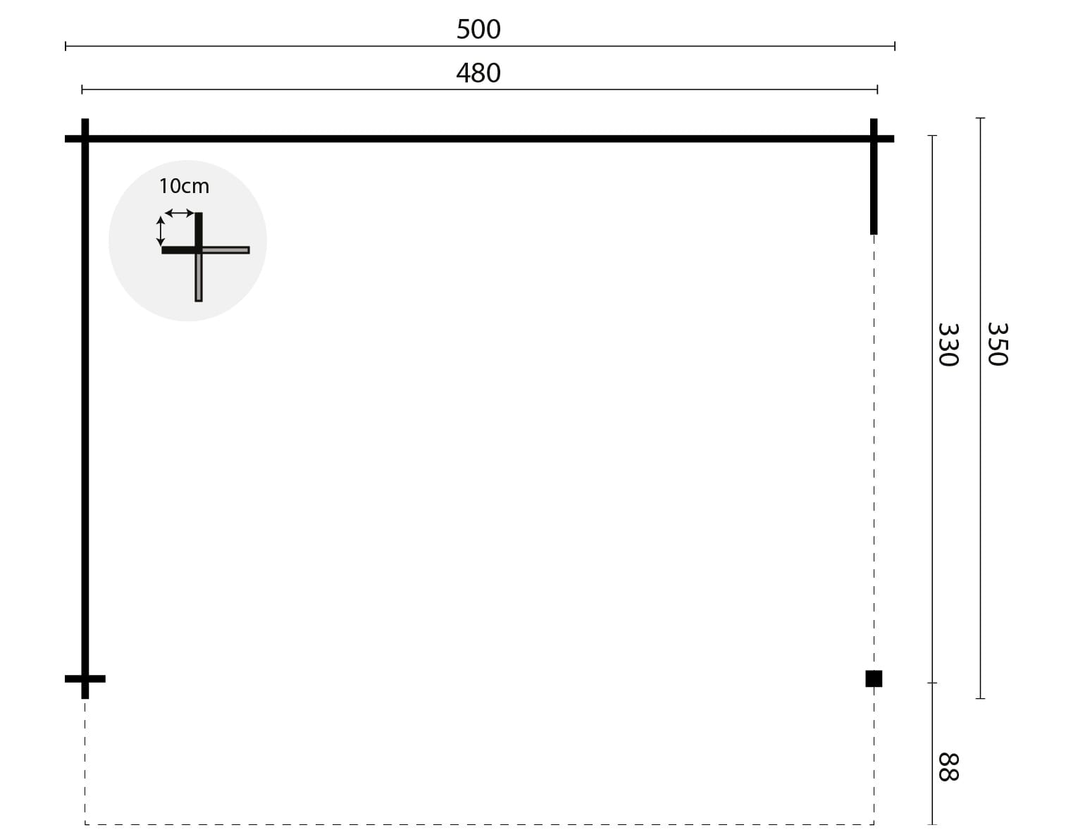
Afmetingen en specificaties:
Fundering: 480 x 330 cm
Buitenmaat: 500 x 350 cm
Totale oppervlakte: 15,8 m²
Dakoppervlakte: 25,2 m²
Nokhoogte: 290 cm
Inhoud: 34,7 m³
Wanddikte: 44 mm – solide basis, geschikt voor seizoensgebruik
Hoekverbindingen: Sterke 10 cm hoekverbindingen voor duurzaamheid
Let op:
Geen deuren of ramen inbegrepen (volledig open uitvoering)
Niet geschikt voor dakpannen
Dakbedekking niet inbegrepen
Montage mogelijk: Kies voor montage door onze ervaren vakmensen voor een snelle en zorgeloze oplevering.












