Deze royale overkapping met berging combineert robuustheid, stijl en praktisch gebruik. Gemaakt van fijnbezaagd, zwart geïmpregneerd Douglas hout, straalt dit bouwwerk kracht en klasse uit. Dankzij het platte dak en de moderne uitstraling past deze overkapping perfect in elke tuin.
Belangrijkste kenmerken:
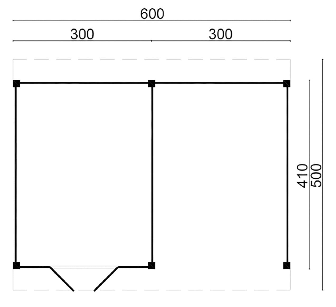
Totale afmetingen: 600 x 500 cm
Fundering: 600 x 410 cm
Daktype: Plat dak (dakbedekking optioneel)
Dakoppervlakte: 30 m²
Nokhoogte: 262 cm
Doorloophoogte: 235 cm
Opbouwvariant: Kan gespiegeld worden opgebouwd
Materialen & Constructie:
Hoofdmateriaal: Douglas hout, zwart geïmpregneerd
Afwerking: Fijn bezaagd
Droging: Ongedroogd
Wandplanken: Zweeds rabat
Staanders: 15 x 15 cm (6 stuks)
Ringbalk & Sporen: 5 x 15 cm
Inclusief: Bevestigingsmaterialen en bouwtekening
Indeling & Gebruik:
Berging met 1 deur
Glas: Enkel glas
Kleur: Zwart
Aantal ruimtes: 1
A-kwaliteit & kernvrij hout
Niet geschikt voor dakpannen
Doe-het-zelf constructie (zelf op maat zagen)
Een ideale combinatie van functionaliteit en uitstraling – perfect als luxe loungeplek, tuinkamer of buitenkeuken met extra opbergruimte.
Liever zorgeloos genieten? Montage is optioneel bij te boeken. Vraag ons naar de mogelijkheden.









